top of page

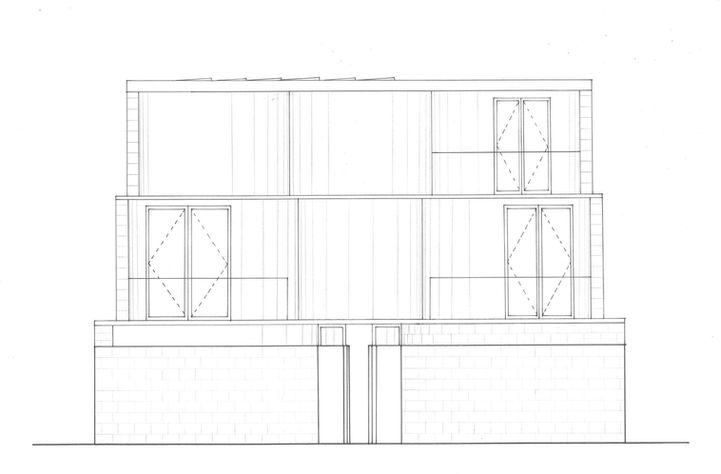
Casa Vetro
Holy Island, Lindisfarne
United Kingdom
Refined simplicity and timeless elegance.
Inspired by the choreography of glassblowing, every curve is deliberate, every layer a quiet echo of the artisan’s hand. It isn’t just a home, but a living sculpture that transforms into a stage where every detail speaks to the rhythm of creation and the art of living. It is a testament to the fusion of craftsmanship and place.
Date completed
May 2025
Project type
Residential

Every line
tells a story.
Ryan Ng
© 2026
|
|
10:07:19 PM
GBR
HKG
bottom of page















